Appartement avec jardin - option v. - 1190 Forest

Option
1190 Forest
Appartement avec jardin - option v.
121 m² 3 2 1
YES Properties vous présente ce bel 'appartement 3 chambres', reconnu comme 'logement avec bureau', idéalement situé à deux pas de l'Attitude 100, des commerces, écoles et transports en commun (bus, tram, métro).

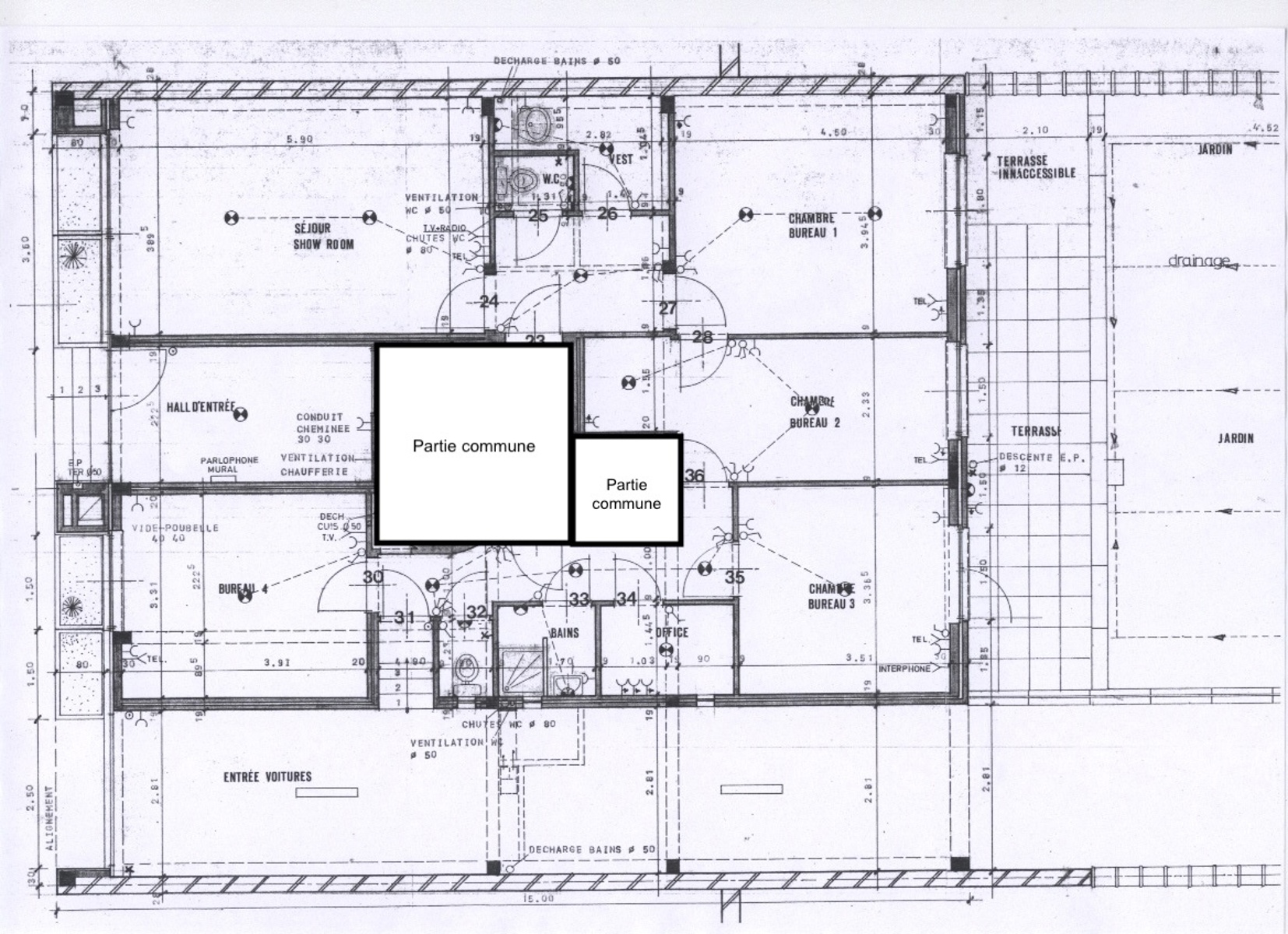
Au rez-de-chaussée d’un immeuble des années 70, au sein d’une petite copropriété familiale, ce bien de ± 121 m² (PEB) en forme de U offre un fort potentiel après rénovation! Il est composé comme suit :

- Séjour de ± 23 m²
- 'Bureau' de ± 13 m²
- Trois "chambres" de ± 18 m², ± 13 m² et ± 12 m²
- Coin cuisine
- Deux salles d’eau
- Deux toilettes séparées
- Terrasse de ± 20 m² (sud-est)
- Jardin privatif de ± 50 m² (sud-est)
- Possibilité d’acquérir 1 ou 2 emplacements de parking intérieur

Ce bien combine volumes généreux, espaces extérieurs privatifs et bonne localisation. Idéal pour un logement avec profession libérale!

Informations et visites :
maxence@yesproperties.be
+32 474 62 11 84

Détails

Général

Référence 7118843
Catégorie Appartement avec jardin
Meublé Non
Nombre de chambres 3
Nombre de salles de bain 2
Jardin Oui
Surface du jardin 50 m²
Garage Oui
Terrasse Oui
Surface habitable 121 m²
Surface du terrain 160 m²
Disponibilité à l'acte

Bâtiment

Année de construction 1970
Parking intérieur Oui
Parking(s) intérieur (nombre) 1

Nom, catégorie & situation

Etage 0
Nombre d'étages 3

Equipement de base

Accès handicapés Oui
Cuisine Oui
Chauffage (ind/coll) (type (ind/coll)) collectif
Ascenseur Oui
Chauffage (type) gaz
Type de cuisine kitchenette

En chiffres

Nbre de toilette(s) (nombre) 2
Nombre de sdd 2
Chambre 1 (surface) 18 m²
Chambre 2 (surface) 13 m²
Chambre 3 (surface) 12 m²
Largeur de façade 8
Nbre de terrasse(s) (nombre) 1
Salle de séjour (surface) 23 m²
Cuisine (surface) 5 m²
Bureau (surface) 13 m²
Orientation de la terrasse 1 sud-est
Surface balcony 1 20 m²

Divers

Bureau Oui

Equipement extérieur

Piscine Non

Spécificités terrain

Type d'environnement calme
Exposition de la façade avant nord-ouest
Risque d'inondation (type innondation) pas situé en zone inondable

Caractéristiques Principales

Surface de terrasse 1 20 m²

Certificats / Attestations

Certificat d'électricité (oui/non) oui, non conforme
Sélection des points d'intérêts

Biens similaires

Prendre contact pour le bien : 7118843
* Champs obligatoires

En envoyant ma demande de contact, je déclare accepter que mes données complétées dans ce formulaire soient utilisées pour les buts mentionnés ci-dessus par Maxime Blause ; et ce, en accord avec la charte de protection de la vie privée du site. Je peux à tout moment retirer mon consentement en introduisant une demande écrite à l’adresse info@yesproperties.be.

Préférences pour les cookies

La protection de vos données personnelles est importante pour nous. C’est pourquoi nous détaillons ci-dessous les différents services et fonctionnalités du site qui utilisent des cookies et nous vous laissons décider des cookies que vous souhaitez autoriser ou refuser.

Veuillez cependant noter que si vous bloquez certains types de cookies, cela pourrait impacter votre expérience de navigation sur notre site ainsi que les fonctionnalités disponibles.

Nous utilisons des cookies fonctionnels obligatoires pour assurer le bon fonctionnement du site. Ils sont, par exemple, nécessaires pour retrouver le résultat d’une recherche ou enregistrer le choix de la langue.

Certaines fonctionnalités, comme l’affichage de vidéos ou de cartes géographiques, sont assurées via des composants externes développés par des partenaires comme YouTube ou Google. Certains composants utilisent des cookies qui sont susceptibles de permettre à ces tiers de suivre le comportement des internautes afin, par exemple, de réaliser du ciblage publicitaire. L’activation de ces fonctionnalités et des cookies associés est donc soumis à votre consentement.