Description
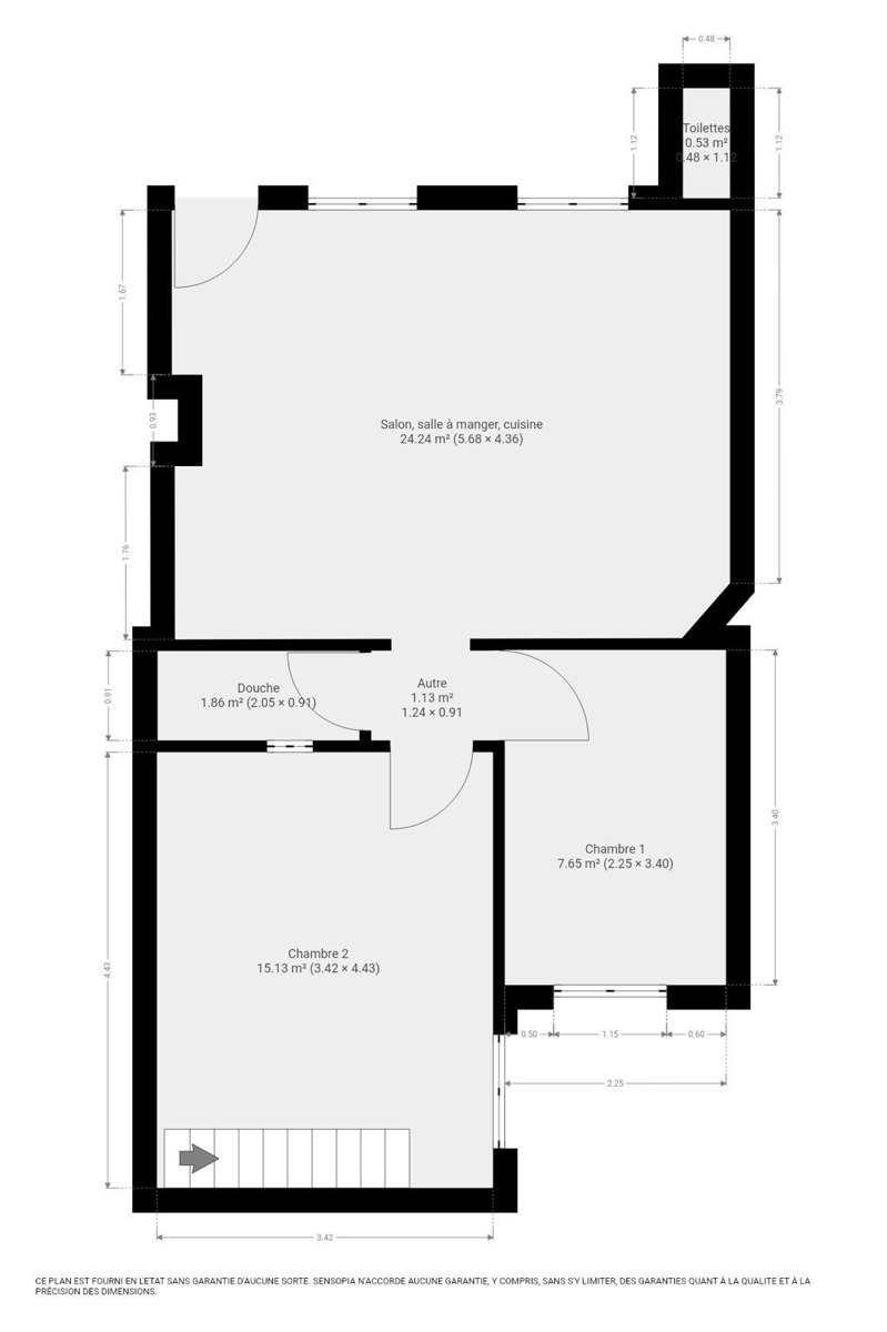
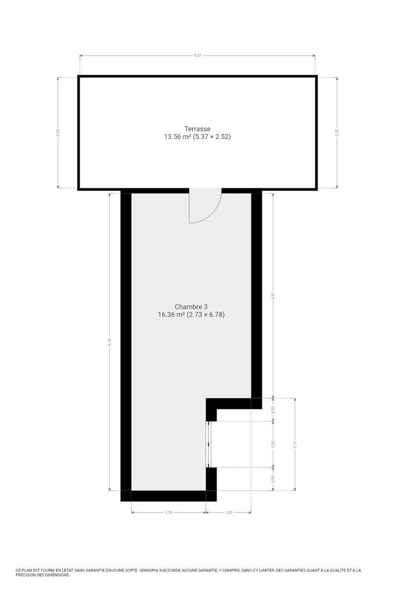
Anderlecht / Rue de l'Orphelinat 50 - Situé dans un coin clame d'Anderlecht, dans une petite copropriété en bon état et avec de faibles charges, à proximité immédiate de toute les commodités (commerces, transports bus-tram-métro, autoroute E19, ...) ... YES! vous propose ce superbe duplex de +/- 70 m2. L'appartement se compose comme suit: l'entrée se fait par un escalier qui donne directement sur un grand espace de vie ( salon, salle à manger et cuisine) de +/- 24 m2, deux chambres de +/- 8 m2 et de +/- 15 m2, hall de nuit et salle de douche. L'accès au deuxième étage se fait par la deuxième chambre qui donne directement sur une chambre de +/- 16m2 avec une spacieuse terrasse de +/- 13 m2 ( espace sous toiture). Cave. Cuisine et salle de douche à installer. Châssis double vitrage neufs. Électricité et plomberie à mettre en conformité. Système de chauffage/ eau chaude individuels à installer. PEB G. Libre immédiatement! Info et visites: maxence.dubois@yesproperties.be / +32 474 62 11 84
Caractéristiques
Général
| Référence | 6734267 |
|---|---|
| Catégorie | Duplex |
| Meublé | Non |
| Nombre de chambres | 2 |
| Nombre de salles de bain | 1 |
| Garage | Non |
| Terrasse | Non |
| Parking | Non |
| Surface habitable | 70 m² |
| Surface du terrain | 80 m² |
| Disponibilité | 01/05/2025 |
Bâtiment
| Année de construction | 1933 |
|---|---|
| Parking intérieur | Non |
| Parking extérieur | Non |
Nom, catégorie & situation
| Etage | 1 |
|---|---|
| Nombre d'étages (numéro) | 2 |
Equipement de base
| Accès handicapés | Non |
|---|---|
| Ascenseur | Non |
| Double vitrage | Oui |
| Chauffage (Format/energie) | Pas installé |
| Type de cuisine | non-équipée |
En chiffres
| Surface bâtie (surf. bât. princ.) | 80 |
|---|---|
| Nbre de toilette(s) (nombre) | 1 |
| Nombre de sdd | 1 |
| Chambre 1 (surface) | 8 m² |
| Chambre 2 (surface) | 16 m² |
| Largeur de façade | 6 |
| Nbre de terrasse(s) (nombre) | 1 |
| Salle de séjour (surface) | 25 m² |
| Salle de bain 1 (surface) | 2 m² |
| Orientation de la terrasse 1 (-) | est |
| Surface balcony 1 | 13 m² |
Equipement extérieur
| Piscine | Non |
|---|
Charges & Rendement
| Sous régime TVA | Non |
|---|
Raccordements
| Égouts | Oui |
|---|---|
| Électricité | Oui |
| Gaz | Oui |
| Câbles téléphoniques | Oui |
| Eau | Oui |
Spécificités terrain
| Type d'environnement | calme |
|---|---|
| Type d'environnement 2 | Vue dégagée |
| Exposition de la façade avant (-) | est |
| Risque d'inondation (type innondation) | pas situé en zone inondable |
Certificats / Attestations
| Certificat d'électricité (oui/non) | oui, non conforme |
|---|
Divers
| Cave | Oui |
|---|
